1. Cogebois
  2. Fabricant de maison en bois
  3. Construction de maison bois clé en main
  4. Acheter sa maison ossature bois près de Dieppe dans la Seine Maritime réf 10012 (76)
Retour

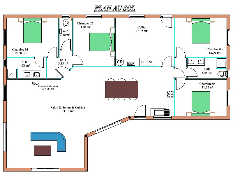
Acheter sa maison ossature bois près de Dieppe dans la Seine Maritime réf 10012 (76)

COGEBOIS livre toutes les fournitures nécessaires à la construction et permet de bâtir sa maison soi-même tout en garantissant robustesse et résistance. Cette maison spacieuse de 150.49m² habitable procure à ses propriétaires la convivialité et la luminosité recherchée. La couleur miel de son bardage, ses menuiseries en aluminium et ses tuiles romanes rendent la maison moderne tout en respectant le style de la région.
Réf 00012

Découvrez aussi une de nos réalisations dans le Gers 32

 

partagez sur
Une question, un devis ?

Notre équipe est à votre disposition pour répondre à vos questions

Nous écrire
Les champs indiqués par un astérisque (*) sont obligatoires
Nous écrire
26 ans d'expérience dans la construction bois
26 ans d'expérience dans la construction bois
Fabrication Française
Fabrication Française
Petites ou grandes surfaces
Petites ou grandes surfaces
Zone d'intervention: Nouvelle Aquitaine & Occitanie
Zone d'intervention: Nouvelle Aquitaine & Occitanie
Terrasse Bois