1. Cogebois
  2. Fabricant de maison en bois
  3. Construction de maison bois en kit
  4. Construction maison bois auto construction - près de Mont de Marsan dans les Landes (40) - Réf. 00026
Retour

Construction maison bois auto construction - près de Mont de Marsan dans les Landes (40) - Réf. 00026

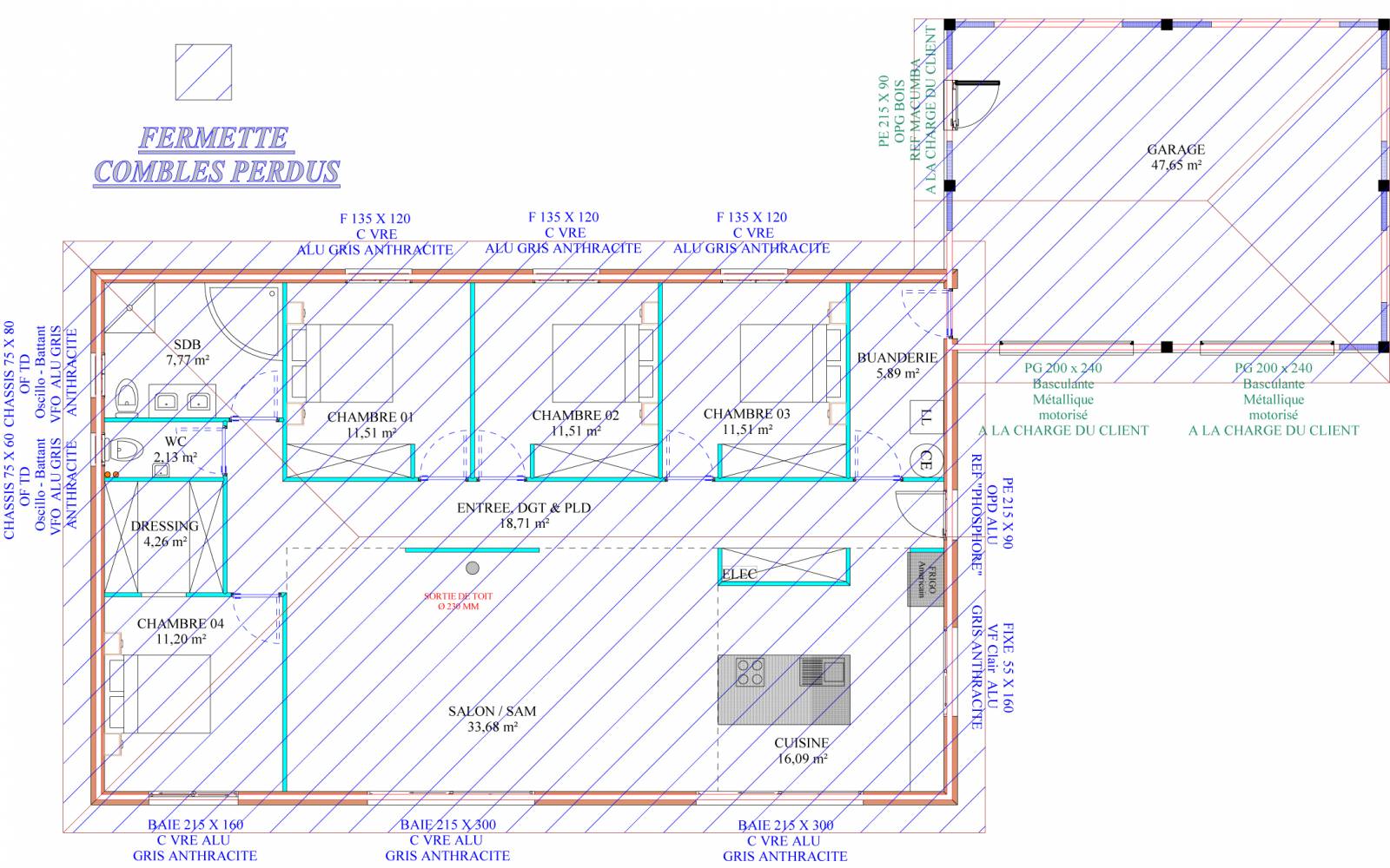
COGEBOIS vous présente une maison bois en auto construction réalisé dans les Landes près de Mont de Marsan

Cette maison de 134.26m2 offre de beaux volumes avec quatre grandes chambres, une cuisine ouverte sur le salon avec deux grandes baies vitrées afin de laisser rentrer un maximum de lumière dans cette pièce de vie. Un garage de 47m2 a été demandé par les propriétaires. La couverture de cette grande maison est en tuiles à ondes modèle Galleane12 de chez Monier. Son bardage est en douglas naturel couleur bois alors que les menuiseries Alu gris anthracite apportent un contraste de couleur.
Cette maison a été réalisé en auto construction.

COGEBOIS constructeur de maisons bois depuis plus de 20 ans dans le SUD OUEST est à votre écoute pour tous vos projets de construction en bois  : maisons clés en main, maisons en auto construction, ou maisons hors d'eau hors d'air.
De nombreuses solutions s'offrent à vous pour trouver la solution idéale adaptée à vos besoins en respectant votre budget.

partagez sur
Une question, un devis ?

Notre équipe est à votre disposition pour répondre à vos questions

Nous écrire
Les champs indiqués par un astérisque (*) sont obligatoires
Nous écrire
26 ans d'expérience dans la construction bois
26 ans d'expérience dans la construction bois
Fabrication Française
Fabrication Française
Petites ou grandes surfaces
Petites ou grandes surfaces
Zone d'intervention: Nouvelle Aquitaine & Occitanie
Zone d'intervention: Nouvelle Aquitaine & Occitanie
Terrasse Bois