1. Cogebois
  2. Fabricant de maison en bois
  3. Construction de maison bois en kit
  4. Maison auto construction - près de Montauban dans le Tarn et Garonne (82) - Réf.11-12
Retour

Maison auto construction - près de Montauban dans le Tarn et Garonne (82) - Réf.11-12

COGEBOIS vous présente une construction bois près de Montauban (82)

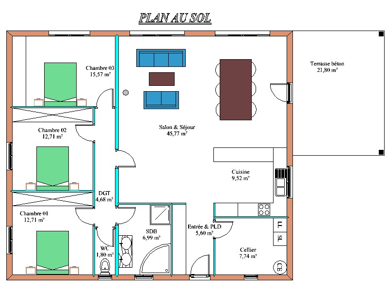
Voici les caractéristiques :

Surface hors d’eau hors d’air :  158,05 m²           

Surface habitable :  123,09 m²  

Charpente :  fermette                 

Pente de toit :  35 %                     

Couverture :  tuile romane rouge vieillie                            

Bois extérieur :  douglas                             

Menuiseries :  bois - pvc - aluminium                   

Terrasse :  béton                            

Montage :  auto construction

partagez sur
Une question, un devis ?

Notre équipe est à votre disposition pour répondre à vos questions

Nous écrire
Les champs indiqués par un astérisque (*) sont obligatoires
Découvrez également
construction bois près de Montauban (82)
bardage rouge

Maison auto construction - près de Montauban dans le Tarn et Garonne (82) - Réf. 00021

COGEBOIS vous présente une construction en ossature bois simple et originale près de Montauban dans le Tarn et Garonne. Implantée au cœur du Tarn et Garonne en Occitanie, Montauban, ville aux charmes multiples et à l'histoire riche, accueille une réalisation exceptionnelle de COGEBOIS. Cette mais...
En savoir plus
maison bois près de Montauban (82)
façade bardage bois maison individuelle Tarn et Garonne

Maison auto construction - près de Montauban dans le Tarn et Garonne (82) - Réf. 00005

Dotée d'une charpente traditionnelle et de fermettes robustes, cette maison ossature bois COGEBOIS réalisée en auto construction près de Montauban (82) offre 174m² habitables. Sa pente de toit à 35% assure une esthétique élégante tout en garantissant une excellente évacuation des eaux pluviales. ...
En savoir plus
Nous écrire
26 ans d'expérience dans la construction bois
26 ans d'expérience dans la construction bois
Fabrication Française
Fabrication Française
Petites ou grandes surfaces
Petites ou grandes surfaces
Zone d'intervention: Nouvelle Aquitaine & Occitanie
Zone d'intervention: Nouvelle Aquitaine & Occitanie
Terrasse Bois