1. Cogebois
  2. Fabricant de maison en bois
  3. Construction de maison bois en kit
  4. Maison auto construction - près de Pau dans les Pyrénées Atlantiques (64) - Réf. 00025
Retour

Maison auto construction - près de Pau dans les Pyrénées Atlantiques (64) - Réf. 00025

COGEBOIS vous présente une maison bois près de Pau.

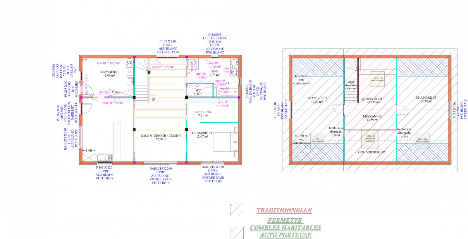
C'est une maison de 96.12m2 de surface habitable au rez-de-chaussée, et 52m2 à l'étage. Cette maison se compose de trois chambres (deux à l'étage et une au rez-de-chaussée), d'une salle de bain, et d'une cuisine ouverte sur le salon. Les souhait des propriétaires est de pouvoir voir le séjour depuis la mezzanine. L'extérieur de la maison bois est réalisé en clin couleur "gris perle" et sa couverture est en tuiles plates modèle "prestige" couleur ardoisé. Les menuiseries de cette agréable maison sont en PVC Blanc avec des grands carreaux et les tapées sont bois de couleur Padouk ce qui apporte de la couleur à la maison.

Le montage de cette maison a été réalisé en auto construction. 

partagez sur
Une question, un devis ?

Notre équipe est à votre disposition pour répondre à vos questions

Nous écrire
Les champs indiqués par un astérisque (*) sont obligatoires
Découvrez également
maison en autoconstruction
maison à ossature bois

Maison auto construction - Chalet - près de Nay dans les Pyrénées Atlantiques (64) - Réf. 00010

COGEBOIS vous présente une maison construction bois près de Nay 64Cette maison a une surface habitable de 105.22 m², elle propose une cuisine ouverte sur le salon et trois chambres de taille moyenne. Grâce aux baies vitrées, les propriétaires profitent d'une vue sur les plaines de Nay et ainsi sur...
En savoir plus
Nous écrire
26 ans d'expérience dans la construction bois
26 ans d'expérience dans la construction bois
Fabrication Française
Fabrication Française
Petites ou grandes surfaces
Petites ou grandes surfaces
Zone d'intervention: Nouvelle Aquitaine & Occitanie
Zone d'intervention: Nouvelle Aquitaine & Occitanie
Terrasse Bois