1. Cogebois
  2. Constructions modulaires en bois
  3. Maison auto construction - Toit terrasse - près de Mont de Marsan dans les Landes (40) - Réf. 00015
Retour

Maison auto construction - Toit terrasse - près de Mont de Marsan dans les Landes (40) - Réf. 00015

COGEBOIS vous présente une maison BOIS près de Mont de Marsan

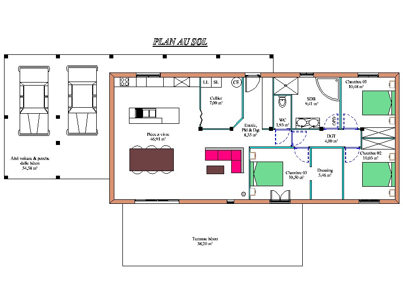
Maison de plain-pied qui a une surface HORS D'EAU - HORS D'AIR de 221.59 m² et surface HABITABLE de 114.02 m². Cette maison comporte trois chambres et l'une d'elle a un dressing. La cuisine est ouverte sur le salon, et séjour. Les propriétaires ont décidé d'avoir une grande terrasse exposée sud de 38 m² environ et d'un grand garage pouvant accueillir deux voitures. La maison a un toit terrasse et son bardage est en douglas saturé couleur miel. Les menuiseries sont en bois, pvc, et aluminium. La terrasse est en béton.      

partagez sur
Une question, un devis ?

Notre équipe est à votre disposition pour répondre à vos questions

Nous écrire
Les champs indiqués par un astérisque (*) sont obligatoires
Nous écrire
26 ans d'expérience dans la construction bois
26 ans d'expérience dans la construction bois
Fabrication Française
Fabrication Française
Petites ou grandes surfaces
Petites ou grandes surfaces
Zone d'intervention: Nouvelle Aquitaine & Occitanie
Zone d'intervention: Nouvelle Aquitaine & Occitanie
Terrasse Bois