1. Cogebois
  2. Fabricant de maison en bois
  3. Construction de maison bois clé en main
  4. Maison bois de COGEBOIS avec charpente traditionnelle et sa belle mezzanine en Nouvelle Aquitaine Proche de Pau dans le 64 - Réf 40047
Retour

Maison bois de COGEBOIS avec charpente traditionnelle et sa belle mezzanine en Nouvelle Aquitaine Proche de Pau dans le 64 - Réf 40047

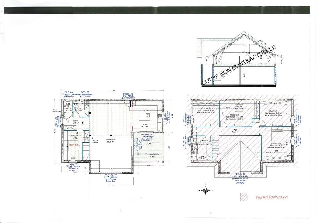
Bienvenue dans l'univers des maisons en bois signées COGEBOIS, où tradition et modernité se marient harmonieusement pour créer des espaces de vie uniques. Découvrez notre dernière création située en Nouvelle Aquitaine, à proximité de Pau dans le 64, offrant une charpente traditionnelle et une magnifique mezzanine.

Pau, ville emblématique de la région, est le cadre idéal pour cette propriété unique en son genre. Dotée d'une charpente traditionnelle construite avec soin par nos artisans, cette maison respire l'authenticité et la qualité. La mezzanine, véritable œuvre d'art architectural, offre un espace supplémentaire empreint de charme et de caractère.

Les caractéristiques de cette maison sont à la hauteur des attentes les plus exigeantes. Le bardage douglas confère à la façade un aspect naturel et élégant, tandis que les menuiseries ALU anthracite ajoutent une touche de modernité. À l'intérieur, les grands espaces invitent à la convivialité et au bien-être, tandis que le solivage apparent et le toit intérieur cathédral apportent une sensation d'espace et de luminosité incomparable.

La terrasse couverte, véritable extension de l'espace de vie, est l'endroit idéal pour profiter des douces soirées d'été en famille ou entre amis, tout en admirant le paysage environnant. Cette maison en bois COGEBOIS incarne le parfait équilibre entre confort, esthétique et respect de l'environnement.

Que vous soyez à la recherche d'une résidence principale ou d'une maison de vacances, cette propriété saura répondre à toutes vos attentes. Située à quelques pas de Pau, elle offre un cadre de vie privilégié, alliant tranquillité et proximité des commodités.

N'hésitez plus et venez découvrir dès maintenant les maison bois de COGEBOIS avec charpente traditionnelle.

Voici donc une maison COGEBOIS , alliant charpente traditionnelle, mezzanine, bardage douglas, menuiserie ALU anthracite. Grands espaces, tuile plate noir, solivage apparent, toit intérieur cathédral, terrasse couverte offrent l'harmonie parfaite entre tradition et modernité, dans un cadre idyllique de Nouvelle Aquitaine.

partagez sur
Une question, un devis ?

Notre équipe est à votre disposition pour répondre à vos questions

Nous écrire
Les champs indiqués par un astérisque (*) sont obligatoires
Découvrez également
construction maison bois près de Labarthe de Nesthe 65
auto construction maison bois dans les Hautes Pyrénées 65

Acheter Maison bois auto construction dans les Pyrénées Atlantiques (64) - Réf: 00036

Acheter sa maison bois pour montage en auto construction
En savoir plus
maison en autoconstruction
maison à ossature bois

Maison auto construction - Chalet - près de Nay dans les Pyrénées Atlantiques (64) - Réf. 00010

COGEBOIS vous présente une maison construction bois près de Nay 64Cette maison a une surface habitable de 105.22 m², elle propose une cuisine ouverte sur le salon et trois chambres de taille moyenne. Grâce aux baies vitrées, les propriétaires profitent d'une vue sur les plaines de Nay et ainsi sur...
En savoir plus
maison ossature bois
maison bois blanc

Maison auto construction - Près de Garlin dans les Pyrénées Atlantiques (64) - Réf. 00022

COGEBOIS vous présente une maison bois près de Garlin (64)Cette maison est originale par son entrée qui sépare la maison en deux avec d'un côté l'espace nuit et d'un autre coté l'espace de vie commune. La maison comporte trois grandes chambres...
En savoir plus
Nous écrire
26 ans d'expérience dans la construction bois
26 ans d'expérience dans la construction bois
Fabrication Française
Fabrication Française
Petites ou grandes surfaces
Petites ou grandes surfaces
Zone d'intervention: Nouvelle Aquitaine & Occitanie
Zone d'intervention: Nouvelle Aquitaine & Occitanie
Terrasse Bois