1. Cogebois
  2. Fabricant de maison en bois
  3. Construction de maison bois hors d'eau hors d'air
  4. Maison hors d'eau hors d'air - près de St Tropez dans le Var (83) - Réf.20012
Retour

Maison hors d'eau hors d'air - près de St Tropez dans le Var (83) - Réf.20012

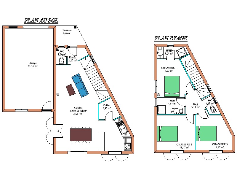
COGEBOIS vous présente une maison bois près de St TROPEZ

Voici les caractéristiques :

Surface hors d’eau hors d’air :  99,70 m²             

Surface habitable :  87,26 m²     

Charpente :  fermette                 

Pente de toit :  30 %                     

Couverture :  tuile romane rouge                          

Bois extérieur :  douglas naturel                             

Menuiseries :  bois - pvc - aluminium                   

Terrasse :  béton                            

Montage réalisé par des artisans locaux            

partagez sur
Une question, un devis ?

Notre équipe est à votre disposition pour répondre à vos questions

Nous écrire
Les champs indiqués par un astérisque (*) sont obligatoires
Découvrez également
maison bois près de Paris 75
construction maison bois dans l'Essonne 91

Maison hors d'eau hors d'air - près de Paris dans l'Essonne (91) - Réf.20034

Cogebois : Une maison contemporaine aux portes de Paris Découvrez cette pépite architecturale, fruit d'un savoir-faire artisanal et d'un design soigné. Située dans le 91, cette maison en bois se distingue par son originalité : trois façades principales et une fenêtre triangulaire lui confèrent un...
En savoir plus
auto construction d'une ossature bois menuiseries ALU près de Dieppe 76
maison bois en charpente fermette  près de Dieppe en Seine Maritime 76

Maison hors d'eau hors d'air de 140 m² habitables - près de Dieppe en Seine Maritime (76) - Réf.20008

Cogebois : Le charme de la Normandie réinventé Découvrez cette magnifique maison normande, située à proximité de Dieppe. Avec ses 140 m² habitables, elle offre un espace de vie généreux et lumineux. Son architecture typique, caractérisée par une pente de toit prononcée de 80% et un bardage en b...
En savoir plus
Maison hors d'eau hors d'air spacieuse et lumineuse - près de Paris en Seine et Marne (77) - Réf.20022

Maison hors d'eau hors d'air spacieuse et lumineuse - près de Paris en Seine et Marne (77) - Réf.20022

Cogebois : Votre maison bois spacieuse et lumineuse en Seine-et-Marne Envie d'une maison spacieuse, lumineuse et au design moderne ? Cogebois, votre constructeur de maisons bois depuis plus de 25 ans, vous propose une réalisation exceptionnelle en Seine-et-Marne (77). Cette maison allie...
En savoir plus
Nous écrire
26 ans d'expérience dans la construction bois
26 ans d'expérience dans la construction bois
Fabrication Française
Fabrication Française
Petites ou grandes surfaces
Petites ou grandes surfaces
Zone d'intervention: Nouvelle Aquitaine & Occitanie
Zone d'intervention: Nouvelle Aquitaine & Occitanie
Terrasse Bois