1. Cogebois
  2. Fabricant de maison en bois
  3. Construction de maison bois clé en main
  4. Maison ossature bois - près d'Auch dans le Gers (32) - Réf.30005
Retour

Maison ossature bois - près d'Auch dans le Gers (32) - Réf.30005

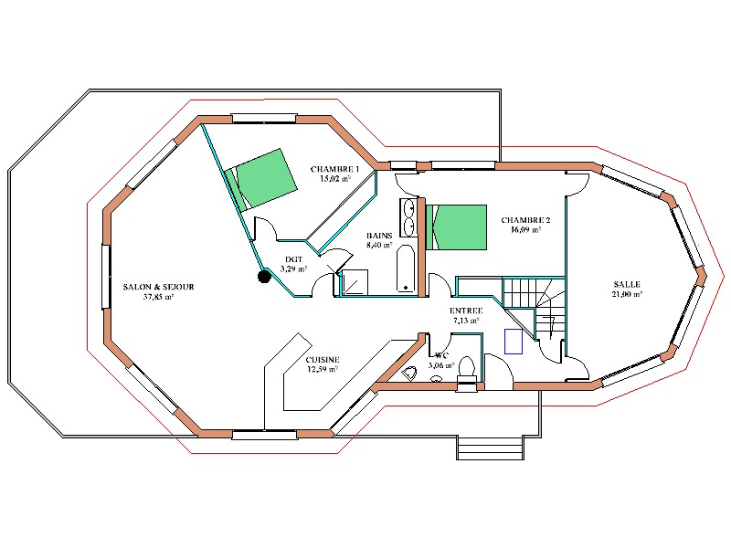
COGEBOIS vous présente une maison ossature bois près d'Auch avec une surface hors d’eau hors d’air de 214,67 m² pour une surface habitable de 124,43 m². Ce projet est réalisé avec une charpente Traditionnelle ayant une Pente de toit de 35 %  recouverte de tuile romane rouge. Le bardage extérieur est en bois reconstitué en couleur ; tous les types de menuiseries sont utilisés : Bois, PVC et Aluminium.                
la terrasse est en caillebotis IPE.                       
Le montage de cette maison a été réalisé avec des artisans locaux.            
Cette construction de Maison à ossature bois a une architecture particulière très facile à vivre.

partagez sur
Une question, un devis ?

Notre équipe est à votre disposition pour répondre à vos questions

Nous écrire
Les champs indiqués par un astérisque (*) sont obligatoires
Découvrez également
Maison construction bois en bardage couleur réf 40013 - près d'Auch dans le Gers (32) en Occitanie

Maison construction bois en bardage couleur réf 40013 - près d'Auch dans le Gers (32) en Occitanie

Une maison spacieuse et chaleureuse signée COGEBOIS aux portes d'Auch Située à proximité d'Auch, dans le Gers, cette maison en ossature bois signée COGEBOIS vous offre un cadre de vie idéal pour les familles nombreuses ou celles qui souhaitent profiter...
En savoir plus
Maison hors d'eau hors d'air ou clé en main en bardage couleur  réf 20003 - près d' Eauze Gers (32) proche de Nogaro
maison bois dans le Gers près d'Eauze 32

Maison hors d'eau hors d'air ou clé en main en bardage couleur réf 20003 - près d' Eauze Gers (32) proche de Nogaro

Votre havre de paix en ossature bois dans le Gers Cogebois vous invite à découvrir une charmante maison en ossature bois nichée dans le cadre paisible du Gers. Cette maison de 141,93 m² hors d'eau hors d'air et 85,96 m² habitables saura vous...
En savoir plus
auto construction d'une maison ossature bois  dans le Gers 32
maison bois avec tuile à ondes et bardage douglas près d'Auch 32

Maison ossature bois avec bardage douglas - près d'Auch dans le Gers (32) - Réf.30034

Cogebois : Votre maison sur-mesure, au cœur du Gers Vous recherchez une maison confortable, fonctionnelle et parfaitement adaptée à votre mode de vie ? Cogebois vous propose cette maison de plain-pied de 120m², située à proximité d'Auch. Son agencement optimisé a été conçu pour vous offrir un ...
En savoir plus
Nous écrire
26 ans d'expérience dans la construction bois
26 ans d'expérience dans la construction bois
Fabrication Française
Fabrication Française
Petites ou grandes surfaces
Petites ou grandes surfaces
Zone d'intervention: Nouvelle Aquitaine & Occitanie
Zone d'intervention: Nouvelle Aquitaine & Occitanie
Terrasse Bois