1. Cogebois
  2. Fabricant de maison en bois
  3. Construction de maison bois clé en main
  4. Réaliser sa maison bois en Autoconstruction secteur Tarbes (65) réf 10042
Retour

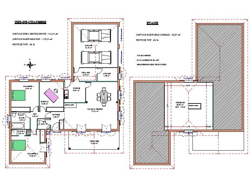
Réaliser sa maison bois en Autoconstruction secteur Tarbes (65) réf 10042

Cogebois vous propose un kit pour l'auto construction, un suivi de votre projet pas à pas avec un dossier de montage illustré et complet pour les novices ou confirmés. Cette maison en ossature bois avec des combles aménageables a une charpente style "Béarnaise" avec croupes et matériaux de qualités recouverte de Tuiles plates noires, et un clin couleur Blanc en pin abouté. cette maison spacieuse près de 150 m² habitable est composée de 3 chambres, 1 bureau, 1 cellier, 1 belle pièce à vivre, 1 atelier et 1 double garage.
Réf : 10042

Découvrez aussi une de nos réalisations en Hautes Garonne

partagez sur
Une question, un devis ?

Notre équipe est à votre disposition pour répondre à vos questions

Nous écrire
Les champs indiqués par un astérisque (*) sont obligatoires
Nous écrire
26 ans d'expérience dans la construction bois
26 ans d'expérience dans la construction bois
Fabrication Française
Fabrication Française
Petites ou grandes surfaces
Petites ou grandes surfaces
Zone d'intervention: Nouvelle Aquitaine & Occitanie
Zone d'intervention: Nouvelle Aquitaine & Occitanie
Terrasse Bois