1. Cogebois
  2. Fabricant de maison en bois
  3. Construction de maison bois clé en main
  4. Maison bois réf 10007 - près de Capbreton dans les Landes (40)
Retour

Maison bois réf 10007 - près de Capbreton dans les Landes (40)

Cogebois vous présente une maison bois près de Capbreton dans les Landes (40)

 

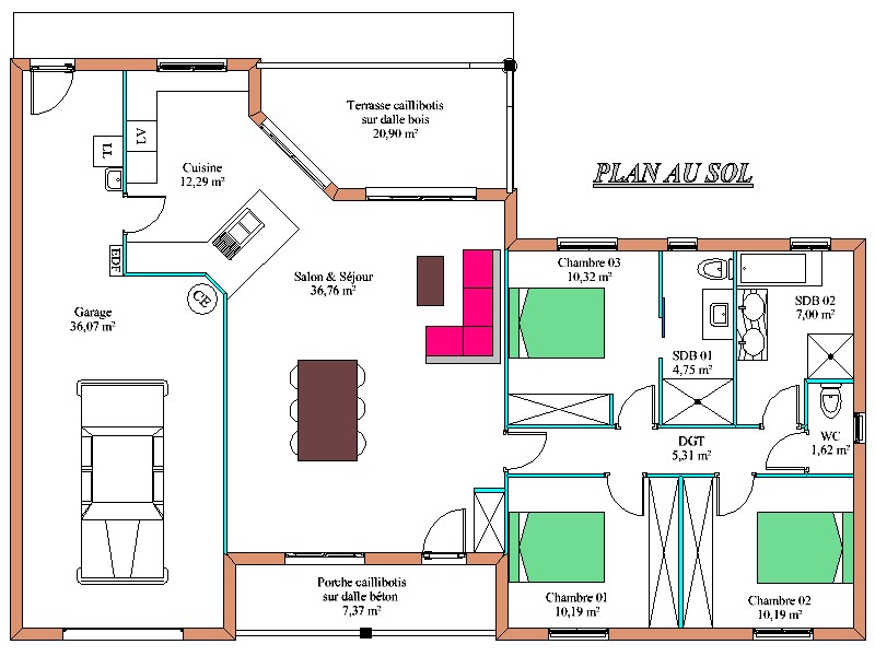
Cette maison de plain-pied a une surface habitable de 98m2, ce qui permet l'aménagement d'une agréable pièce de vie avec sa cuisine ouverte, un coin nuit comprenant 3 chambres dont 1 chambre parentale, plus 1 salle de bain et toilette séparé, et un garage + cellier. Son bardage bois est en Pin des landes teinté de couleur blanc, la couverture avec des tuiles romanes "rouge vieillie" et ses menuiseries blanches sont en PVC et aluminium avec des volets roulants électriques. Les volumes de cette maison sont spacieux, la maison est lumineuse. La lumière s'invite dans la décoration intérieure qui oscille entre blanc et gris. Cette maison a une terrasse en caillebotis sur dalle béton couverte coté jardin pour profiter de dehors que ce soit en été comme en hiver. Elle s'accorde parfaitement avec la végétation landaise. La maison est entièrement équipée de chauffages électriques.

Cette maison ossature bois Cogebois est entièrement conçue autour de l'idée de réunion et de partage, la famille profite ainsi pleinement de la vie quotidienne.

Le montage de cette maison a été réalisé par des artisans locaux.


Découvrez aussi d'autres réalisations dans les Landes 40

partagez sur
Une question, un devis ?

Notre équipe est à votre disposition pour répondre à vos questions

Nous écrire
Les champs indiqués par un astérisque (*) sont obligatoires
Découvrez également
construction bois près de Mont de Marsan 40
plan maison bois

Construction maison bois auto construction - près de Mont de Marsan dans les Landes (40) - Réf. 00026

COGEBOIS vous présente une maison bois en auto construction réalisé dans les Landes près de Mont de MarsanCette maison de 134.26m2 offre de beaux volumes avec quatre grandes chambres, une cuisine ouverte sur le salon avec deux grandes baies vitrées afin de...
En savoir plus
Maison ossature bois - Près de Mont de Marsan  dans les Landes (40) - Réf 30027
construction bois dans les Landes 40

Maison ossature bois - Près de Mont de Marsan dans les Landes (40) - Réf 30027

COGEBOIS : Votre Constructeur de maison Bois sur-mesure, au cœur des Landes Vous rêvez d'une maison individuelle, confortable et parfaitement adaptée à votre mode de vie ?  COGEBOIS vous propose de découvrir sa dernière réalisation dans les Landes : une maison à ossature bois de 143 m² habitab...
En savoir plus
construction bois près de Mont de Marsan 40
ossature maison bois

Maison auto construction - Toit terrasse - près de Mont de Marsan dans les Landes (40) - Réf. 00015

COGEBOIS vous présente une maison BOIS près de Mont de Marsan Maison de plain-pied qui a une surface HORS D'EAU - HORS D'AIR de 221.59 m² et surface HABITABLE de 114.02 m². Cette maison comporte trois chambres et l'une d'elle a un dressing. La cuisine est...
En savoir plus
Nous écrire
26 ans d'expérience dans la construction bois
26 ans d'expérience dans la construction bois
Fabrication Française
Fabrication Française
Petites ou grandes surfaces
Petites ou grandes surfaces
Zone d'intervention: Nouvelle Aquitaine & Occitanie
Zone d'intervention: Nouvelle Aquitaine & Occitanie
Terrasse Bois